ONE'S CUBO-TypeO.D.Living
TypeO.D.Living [OUTDOOR STYLE] 32坪

余白から生まれる自然との調和
プランを雁行させることで、敷地に配置した際に出来る余白をアウトドアリビングとして活用したプランです。
リビング、キッチン、ダイニングのそれぞれの居場所から常に庭との繋がりを感じることの出来るプランです。
本体価格:2,500万円(税別)
1階床面積 |
2階床面積 |
延床面積 |
|---|---|---|
58.39㎡ |
46.78㎡ |
105.17㎡(31.81坪) |
1階床面積 |
58.39㎡ |
|---|---|
2階床面積 |
46.78㎡ |
延床面積 |
105.17㎡(31.81坪) |
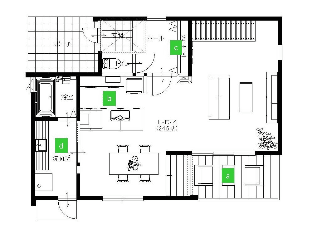
a |
プランを雁行させることで、敷地に配置した際に出来る余白をアウトドアリビングとして活用しています。 リビング、キッチン、ダイニングのそれぞれの居場所から常に庭との繋がりを感じることが出来ます。 |
|---|---|
b |
対面キッチンからは、リビング、ダイニング、アウトドアリビングを一望できます。 家族との繋がりを感じながら料理を愉しめる理想的な配置になっています。 |
c |
エントランス横には大きめのクローゼットを配置。 デイリーユースのコートやゴルフバックなどの収納にも便利です。 |
d |
1.5坪の広々とした洗面所は、収納を配置してタオルや着替えなどをすぐに使える場所に仕舞えたり、室内干しスペースとして機能します。 |
e |
居室、クローゼットの内部壁は大半が構造耐力に影響しない後間仕切壁です。 家族構成やライフステージの変化にも対応できます。 |
※右へスライドしてご覧ください。
※イメージパースの外構、家具類、造付け家具は金額に含まれておりません。
GALLERY







