自然素材にこだわったWOOD×IRONの家
南アルプス市 A様邸
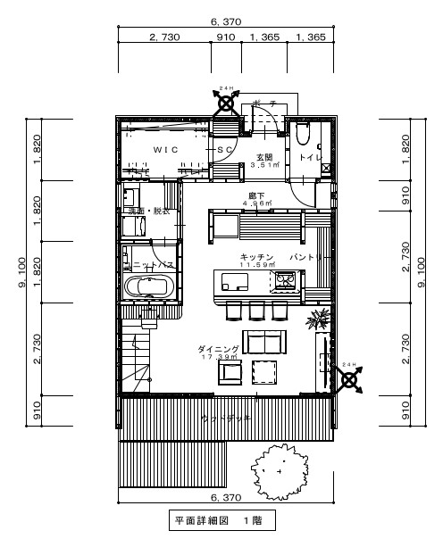
共働きのご夫婦 家事負担軽減
自然素材をたっぷり使用した、31坪2階建ての家。
帰りが遅いご夫婦が、いかに夜中の電力を使用し効率よく家事が出来るかなど、お話合いながら間取りを作成。
広いウッドデッキが特徴の趣味も楽しみながら生活するお家。
DATA
■PLAN:L-BASE
■延べ床面積:103.72㎡
■構造:ハウスガードシステム
■屋根:ガルバリウム鋼板葺
■外壁:金属系サイディング
■窓:APW330 樹脂サッシ
■床:無垢材
■内装:珪藻土、杉板張り
■Ua値:0.50W/㎡K
■C値:0.5c㎡/㎡

外観
重厚感のある金属サイディング。色はシックな色合いのグリーンを採用。玄関裏側は全て板張り。ウッドデッキへと繋がります。

ウッドデッキ
京都川床をイメージした広々ウッドデッ家。ウッドデッキからは、静かな川のせせらぎが聞こえます。ウッドデッキ材はハウスガード木材で腐食を防ぎます。

LDK
とにかく木をたくさん使用したいお施主様のご希望で、板張りと珪藻土が印象的なLDK。床は無垢材ラスティックオークを採用。高い耐久性を持ちます。

階段下
造作棚を設置。書斎、その他様々な用途に使用することが出来ます。階段回りは塗り壁を採用。

キッチン
TOTOザ・クラッソ。水栓の横には付属で『きれい除菌水』生成器を設置。いつでも清潔に保つことが出来ます。

2階フリースペース(和室)
階段を上ると、フリースペースに和室があり来客時の宿泊に対応できるように考えました。

トイレ
珪藻土壁と板張りの壁。調湿消臭作用があります。造作の棚を設置しスタイリッシュに仕上げました。

ランドリー
壁・天井と板張りのランドリー。アイアンバーを設置し、室内干しをメインに生活します。折り畳み式のアイロン作業台も設置。

玄関ホール
玄関を入ると正面にはデコ窓で明かりを取り。ここにも木を多く採用し、木の香りを楽しみます。
お客様の声
L-STYLE COCOCARAに決めた理由は何ですか?
他の工務店で検討をしていました。 L-STYLECOCOCARAさんから自由設計で新たな商品ができたという事で話を聞き、たくさん木を使用したいと思っていましたのでコンセプトに合ったL-BASEに惹かれお願いしました。土地探しから依頼していたので、打ち合わせ時間もスムーズで、土地も分譲地で決めていただきました。
マイホーム計画で不安だったことは何ですか?
家づくりにかかる費用、思い通りの家が建つかどうか。
家づくりの知識、性能の話をしっかりしていただきました。また資金計画もしっかり説明していただきましたので安心できました。
打ち合わせ期間に感じたこと
木をたくさん使用することと、共働きの為家事動線を意識してプランを決めていきました。
こだわったところはどこですか?
玄関~シューズクローク~FCL~洗面&リネンの動線。
自然素材の木と漆喰の内装。セカンドリビングです。
実際に完成した建物を見ての感想
イメージ通りの建物です!
外構工事もしっかりやってもらいました。木の温かさ風合いに癒されます。2階リビング及び畳エリア(来客時)もよかったです!ウッドデッキからの見晴らしも最高です。住み替えだったのですが、新築と前住んでいた物件も土地含めて売買してもらい有難うございました。やっぱり木は良いですね~
地鎮祭・上棟式を開催してよかったですか?
地鎮祭は早朝で初めての経験ができてよかったです。いよいよ家づくりがスタートするんだなという気持ちになりました。上棟式はスタッフさんとお弁当を囲んだのもよい思い出です。
建物を検討している方へ一言
L-STYLECOCOCARAは、家族の健康の為、自然素材の家づくりをしています。土地探しから建物まで全て安心して任せて大丈夫です。ウッドデッキの塗装も自分たちでDIYしますが、アドバイスを頂き安心です。共働きの為家事動線、設備も的確にアドバイスしてくれます。なんでも話をしてみてくださいキット素敵な家ができると思います。

